Продажа объектов ОАО «РЖД»
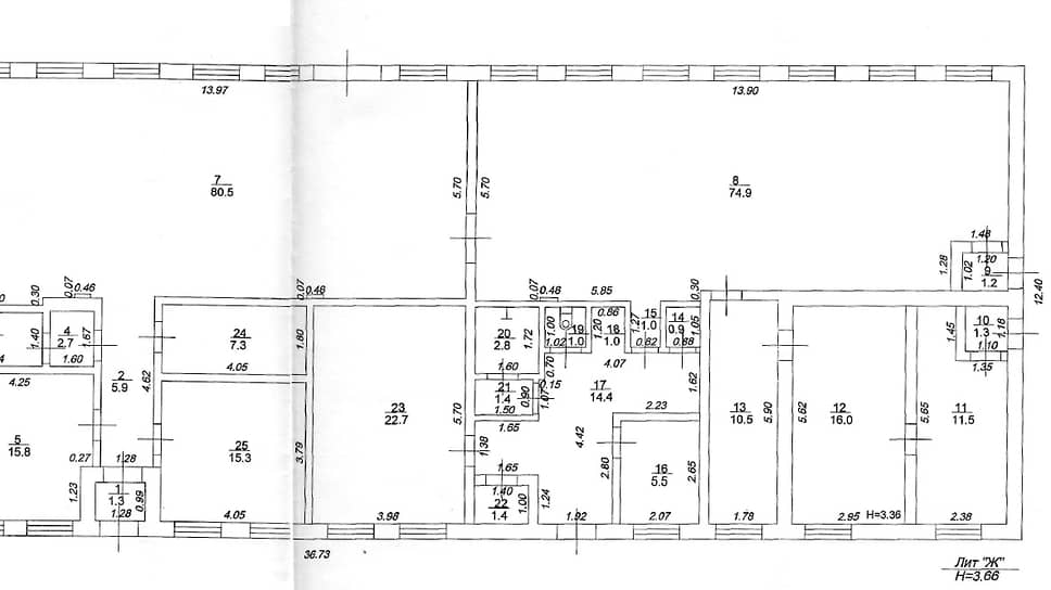
Открытое акционерное общество «Российские железные дороги» в лице Северо-Кавказской железной дороги – филиала ОАО «РЖД», проводит аукцион в электронной форме по продаже с возможным понижением начальной цены продажи, принадлежащих ОАО «РЖД» на праве собственности, здания прачечной площадью 388,6 кв.м и земельного участка площадью 2056 кв.м (кадастровый номер 23:44:0801001:51), по адресу: Краснодарский край, р-н Кавказский, г. Кропоткин, тер. Промзона, уч. 7.
Начальная цена продажи Объектов на Аукционе составляет 3 907 000 рублей (с учетом НДС), в том числе стоимость земельного участка в размере 1 945 000 рублей (НДС не облагается). Величина повышения/понижения начальной цены продажи Объектов на Аукционе («шаг Аукциона») составляет 195 350 рублей.
Аукцион является открытым по составу участников и открытым по форме подачи предложений по цене, проводится в электронной форме с использованием электронной торговой площадки ООО «РТС-тендер» (далее - РТС-тендер), аукционная документация и иная информация об Аукционе размещаются на сайте РТС-тендер (www.rts-tender.ru), на официальном сайте Недвижимость РЖД (www.property.rzd.ru).
Дополнительную информацию об Объектах, осмотре и проведении аукциона можно получить по телефону: (863) 259-00-10.
Северо-Кавказская железная дорога - филиал ОАО "РЖД"
Реклама
